|
1.はじめに 穴吹町は県北西部に位置し、北に吉野川を、南に四国山地を望む。町域の約8割を山林が占め、三方を山に囲まれ、中央部を剣山に源を発する清流穴吹川が北流し、吉野川にそそぎこむ。昭和30年(1955)に旧穴吹町と口山村・古宮村・三島村が合併して現在の穴吹町となった。 私たち社寺建築班は7月28日から町内に入り、社寺建築を建築学的見地から調査した。 神社は24カ所を、寺院は9カ所、お堂建築は6カ所を調査し(図8)、それぞれの建築様式や構造などを一覧表にまとめ、うち9カ所については詳細調査を行い、実測図を作成した。
 神社では、口山字宮内の白人(しらひと)神社の奥社(おくしゃ)である神明(しんめい)神社(図1)や古宮字平谷の石尾(いしのお)神社周辺の磐境(いわさか)(図2)、磐座(いわくら)などの古代祭祀(さいし)遺跡を確認するなど調査の成果をみたが、寺院では特筆すべきものはみられなかった。以下、その内容について報告する。
 
2.穴吹町の社寺建築概要 1)神社建築の概要 神社は24社を調査し、社殿の建築様式や建立年代などを一覧表にまとめた(表1)。その中で、古代祭祀遺跡である神明神社を除いて、桃山から江戸初期の様式をもつ口山字調子野の御崎(みさき)神社本殿をはじめとして、近世の社殿と推定されるものが数カ所見られた。 本殿の建築様式では、神明神社と口山字丸山にある山神社の豊島(てしま)石の祠(ほこら)ならびに木造小社殿4社を除き、19社(白人神社の境内にある摂社八幡神社を含む)が流造(ながれづくり)と圧倒的に多く、三島字舞中島の伊射奈美(いざなみ)神社(十二社神社)の1社が一間社入母屋造(図3)であった。なお、流造のうち、一間社(図4)は14社、三間社は5社(摂社八幡神社を含む)であった。
   御崎神社本殿においては、虹梁(こうりょう)の渦と若葉の絵様(えよう)が離れていること(江戸の後期に渦と若葉がつく)、向拝(こうはい)柱の面取りが10分の1と大きいこと、大斗(だいと)の形状などから、桃山から江戸初期の建築様式の特徴をみることができる。また、和釘(わくぎ)の使用からも推定年代を確認できる。 また、細部の特徴としてあげられるのが、持ち送り(図5)のある本殿が6社と多く見られたことで、特に口山地区は4社と顕著であり、同じ系統の宮大工の造営と思われる。 脇障子(わきしょうじ)は16社でみられ、そのほとんどが板障子で、彫刻などが施されたものは2社であった。随神像(ずいじんぞう)は白人神社、三所神社の2社でみられた。 井桁組(いげたくみ)土台の本殿は3社あり、様式的には、春日造りに使われる工法であるが、流造の本殿で行われており、宮大工の強風に対する配慮や、遷宮しやすくするためになされたものと思われる。 また、基壇(きだん)部の特徴として挙げられるのが、ほとんどの本殿の基壇に青石(緑泥片岩(りょくでいへんがん))が積まれていることである。 神明神社の古代祭祀遺跡も青石が野積みされたものであり、今回調査した神社の境内においても青石で積まれた祠が数多くみられ、青石文化が深く関わっている土地柄を示すものといえる。
2)寺院・お堂建築の概要 寺院を9カ寺、お堂建築を6カ所調査し、建物の建築様式や建立年代などを一覧表にまとめた(表2)。年代のわかる中では、小島の本楽寺の四足鐘台(よつあししょうだい)が18世紀中期(推定)、岩手の享保寺の四足鐘台が安永3年(1774年)と近世にさかのぼる建築である。また、拝村の宝生寺(図6)には黄檗宗風破風(おうばくしゅうふうはふ)がみられるが、明治以降の建物と思われる。舞中島の光泉寺(図7)では、青石積みで本堂の高さを2.45m
上げてある。これは、吉野川の度重なる水害に備えたものである。

 
お堂建築は、修験者たちの信仰の山である剣山を頂点として、その周りの山間部に多く分布する。ほとんどが、木造三間堂の方形(ほうぎょう)屋根や寄棟屋根で、まれに一間堂や二間堂もみられるが、省略型である。なお、ここでいう「間」は、柱の間の数であり、柱間の寸法が1m
でも3m
であっても一間としてあつかう。外壁は、剣山の分水嶺(れい)を境に北部と南部と西部で地域的な傾向がみられ、北部は四方吹きさらし、南部は四方を壁で囲うもの、西部はその両方が混合分布する。ともに床を張って正面に仏壇を置き、本尊を祀(まつ)る。穴吹町内のお堂においても、北部地域の傾向である開放的な四方吹きさらしのものが多くみられ、茅葺(かやぶ)き屋根を瓦(かわら)や波トタンに葺(ふ)き替えられたものがほとんどであった。建立年代では、首野の薬師堂が安永6年(1777年)再興と古く、棟札には大工藤原甚右衛門とあり、藤原系の宮大工がこの周辺の社寺建築に関わっていたことが推測できる。 また、細部の特徴としては、渕名の阿弥陀堂で用いられている落し込み工法や、首野の薬師堂は長押(なげし)のとめ納まりなどが特徴的であった。
3.穴吹町の各社寺
(1)石尾神社(表1−6) 鎮座地−古宮字平谷96 [拝殿]木造 切妻桟瓦葺 [本殿]木造 一間社流造 銅板葺 身舎(もや)−円柱 内法(うちのり)長押 切目(きりめ)長押 頭貫木鼻(かしらぬききばな) 台輪(だいわ) 二手先(ふたてさき) 大斗肘木(ひじき) 中備蟇股(なかそなえかえるまた) 大瓶束(たいへいづか) 二軒繁垂木(ふたのきしげたるき) 向拝−角柱皿斗礎盤(かくばしらさらとそばん) 虹梁型頭貫木鼻 昇逆蓮高欄三方切目縁(のぼりぎゃくれんこうらんさんぼうきれめえん) 背面脇障子 木階(きさばし)三級(木口(こぐち)) 浜床(はまゆか) 千木(ちぎ)−置千木垂直切 堅魚木(かつおぎ)−2本 (図9、11)
   この社は町の南部で山地の傾斜面に鎮座し、昭和32年(1957)に本殿の屋根の改修と鳥居が新築されている。 本殿は一間社流造で、背後に並行する露頭断崖(ろとうだんがい)が迫っていて(図10)、この断崖と周辺の緑泥片岩の板状列石は、古代祭祀遺跡の「磐座」と「磐境」であろうと推定され、昭和62年(1987)3月11日に穴吹町有形文化財に指定されている。主祭神は須佐之男命・大山祇命・水波女命の三神で、祈雨の神として知られる。身舎の円柱は切目長押と内法長押で固め、柱頭部には頭貫と台輪が載る。頭貫木鼻は象と獅子(しし)の彫刻がついている。妻飾は中備蟇股とし大瓶束をたて、軒は二軒繁垂木で破風の拝みには蕪懸魚(かぶらげぎょ)がつく。向拝は角柱に虹梁型頭貫木鼻(龍(りゅう))がつき、身舎をM形の海老(えび)虹梁でつないでいる。縁は三方切目縁で背面柱通りに脇障子を立て、脇障子の柱が土台まで延びていて、縁には腰組持送りが付けられている。木階は木口階段の三級で浜床を張っている。
(2)白人神社(表1−9) 鎮座地−口山字宮内2 [拝殿]木造入母屋造千鳥(ちどり)破風本瓦葺、縋破風軒唐破風(すがるはふのきからはふ)正面一間向拝付き [本殿]木造 三間社流造 銅板葺 身舎−円柱 内法長押 切目長押 頭貫木鼻(妻面−拳(こぶし)、正面−寸切(すんぎ)り 台輪留(とめ) 二手先 連斗枡(つれとます) 妻飾・二重虹梁 扠首束(さすつか) 二重皿斗(さらと)付平三斗(ひらみつど) 二軒繁垂木 向拝−角柱大面取 虹梁型頭貫木鼻 刎(はね)高欄 三方切目縁 木階板昇擬宝珠(いたのぼりぎぼし)高欄 脇障子 千木−垂直切 堅魚木 5本 (図12、13)
  [摂社八幡神社本殿]木造 二間社流造 銅板葺き 身舎−円柱 切目長押 内法長押 虹梁型頭貫木鼻(拳) 柱間斗付板蟇股 台輪留 柱頭部中央平三斗 同隅部出(で)三斗 妻飾・虹梁 大瓶束 二軒繁垂木 向拝−角柱 虹梁型頭貫木鼻(拳) 連(つれ)三斗(送斗(おくりと)なし) 繋(つなぎ)海老虹梁 三方切目縁 刎高欄 木階八級(木口) 昇擬宝珠高欄 脇障子 千木 堅魚木−なし (図14、15)
  この社は、穴吹川の川縁に鎮座する旧村社で、往時は現地の西南の山中にあったが、平安時代後期に、現在地に遷座したと伝える。 桁(けた)行き5間、梁(はり)間3間と大規模な拝殿は、入母屋造の正面に千鳥破風を載せ本瓦葺きとする。正面中央の広一間を、縋破風の先端に軒唐破風を付けた向拝を設ける。三方には擬宝珠高欄の切目縁を回し、本格的な拝殿の体裁を表す。内部の柱頭部には平三斗が組まれ、格天井(ごうてんじょう)を受けている。また、幣殿の境の長押上には、寛文元年(江戸中期1661)の白人大明神の額が掛かる。 本殿は、大規模な三間社流造で、正面に随身立像が立ち、伊弉冉神(いざなみ)・瓊々杵(ににぎ)尊・天照大神・崇徳天皇・源為朝公の5神を祀っている。身舎の円柱を、切目長押と内法長押で固め、柱頭部には頭貫と台輪が載る。頭貫の先端に付く木鼻は、彫刻を施さず寸切りとしている。この手法は西部の井川町でも見られ、同じ系統の宮大工の仕事と思われる。柱頭部は、軒を深くするために二手先とし、手先の上には通し肘木が載り、手先間は連斗枡で埋められる。妻飾りは、大虹梁と二重虹梁間に、二重の皿斗付きの平三斗と、最上部は扠首束で飾る。軒は二軒の繁垂木とし、破風の拝みは蕪懸魚で降り懸魚は省略する。向拝は中央に柱を設けない広一間として、彫りのない頭貫を渡す。縁は刎高欄の三方切目とし、背面柱通りに脇障子を立てる。拝殿・本殿共に正当な造りをした、明治期建立の本殿である。 摂社八幡神社本殿は、境内に建つ建築物群の中では最も古く、幕末から明治初期のものである。側面と背面を二間とし、正面は両側に小脇板を入れ、中央に格子戸を吊(つ)り、緑泥片岩(青石)で積まれた基壇上に建つ。身舎は、円柱を切目長押と内法長押で固め、柱頭部は頭貫(木鼻付き)と台輪が載り、さらに平三戸(隅部は出三斗)で妻飾りの虹梁を受ける。柱間は斗付きの板蟇股をつめ、妻飾りは大瓶束を立てる。軒は二軒繁垂木で、破風の拝みには蕪懸魚が付く。向拝柱は、角柱に虹梁型頭貫木鼻(拳)と、柱頭部には連三斗(送斗なし)が丸桁を受け、身舎とは海老虹梁でつなぐ。縁は白人神社と同じように刎高欄とするが、架木の反りが少なく古代の様相を見せる。木階は木口階段の八級で浜床を張る。
(3)御崎神社(表1−11) 鎮座地−口山字調子野 [拝殿]木造切妻造S型スレート葺正面庇付き [本殿]木造切妻造波鉄板覆屋(おおいや)内 一間社流造板張り(大和葺の変形)見世棚造 身舎−井桁組 角柱面取 腰長押 頭貫 出三斗の連三斗 妻飾り・斗付大瓶束 正面二軒繁垂木背面一軒疎(ひとのきまばら)垂木 向拝−角柱面取 虹梁型頭貫木鼻(象)出三斗の連三斗(送斗付)中備蟇股 千木 堅魚木−なし (図17、18)
   調子野の薬師堂北の社叢(そう)内に鎮座する。拝殿は、神社建築の様相はなく、簡素に建てられている。その奥の石積みされた基壇上に覆屋を建てて、井桁組に載る本殿が納まる。小規模な一間社流造で、屋根は板張りである。幾度かの修繕や取り替えを繰り返しながら、現在の板張りとなったが、原形は厚板の大和葺きであったと思われる。小規模な造りのうえ、井桁を組んでおり、腰長押・内法長押と頭貫のみで柱を固めるという簡素な造りとなっている。向拝柱は角柱に虹梁型頭貫を渡し、象の木鼻を端部に付ける。中備は蟇股をつめる。向拝柱や丸桁から上部は、修繕時に取り替えられているが、その他の部材は旧来のものである。虹梁や斗■(ときょう)、繋海老虹梁などには、漆塗りや多彩色の跡(図16)も見られる。朱や胡粉(ごふん)は古代から、神社社殿の外部の組み物などに彩色されるが、彩色画や極彩色が施されるのは室町の後期からとなる。ここの組物や虹梁にも、朱や黒・胡粉の跡がはっきりと見られる。また、身舎柱の面取りは7分の1と大きく、室町から桃山時代の様式を、虹梁の渦や若葉の発達具合は17世紀前半の様式、大斗は桃山から江戸初期の形状を示している。棟札や聞き取りの調査をすれば、建立年代が解明されると思われるが、様式論から判断すれば、桃山から江戸初期の様相を表す。
(4)新田神社(表1-14) 鎮座地−口山字渕名481 [本殿]木造 一間社流造 銅板葺 身舎−円柱 切目長押 内法長押 頭貫木鼻(拳) 出三斗 妻飾・虹梁大瓶束 中備彫刻蟇股 二軒繁垂木(背面:一軒繁垂木) 向拝−角柱 虹梁型頭貫木鼻(龍、錫杖(しゃくじょう)彫) 出三斗 中備彫刻蟇股 繋海老虹梁 刎高欄三方切目縁 腰板張 脇障子省略 木階五級(木口) 昇擬宝珠高欄 千木−垂直切 堅魚木−3本 (図19、21、22)
  
 この社は旧村社で、旧口山村の渕名に鎮座する。創立年代は不詳であるが、寛保神明帳(1741〜44)に「新田八王子」と記されている由緒ある社である。 本殿はやや高めの基壇(1340mm)に建つ、標準的な規模の一間社流造の社殿である。身舎は、円柱を切目長押と内法長押で固め、柱頭部には頭貫が載るが台輪は省略する。組物は、身舎向拝部ともに出三斗である。妻飾(図20)は虹梁大瓶束で、笈(おい)型はない。また中備には、4面ともに斗付の蟇股が取り付く。細部の造りで特徴的なものは、軒の繁垂木である。正面の二軒に対して、背面は一軒と簡略化しているが、これは鳴門地域等にみられる手法と同一である。虹梁や頭貫木鼻の彫刻から、幕末期の建立と推察する。
(5)和田津見神社(表1−17) 鎮座地−口山字中野299 [本殿]木造 一間社流造 桧皮(ひわだ)葺(覆屋) 身舎−円柱 切目長押 内法長押 頭貫木鼻 台輪留 皿斗付出三斗 妻飾・虹梁大瓶束 二軒繁垂木 向拝−角柱 虹梁型頭貫木鼻(象) 皿斗付出三斗 中備彫刻蟇股 繋海老虹梁 手挟(たばさみ) 擬宝珠高欄三方切目縁 腰持送 脇障子(彫刻) 木階五級(木口) 昇擬宝珠高欄 千木−垂直切 堅魚木−3本 (図23、24、26)
  
 この社は旧口山村の中野に鎮座する。町誌によると、「昭和8年に本殿に鞘を造営し、同37年鞘を鉄板葺とし、同48年拝殿の改修を行った」とあるが、本殿は現在も覆屋で保護されている。 本殿は桧皮葺の小規模な一間社流造の社殿である。身舎は円柱を切目長押と内法長押で固め、柱頭部には頭貫と台輪が載る。組物は身舎向拝部ともに皿斗付の出三斗である。特徴としては、身舎と向拝のつなぎに海老虹梁と手挟を併用している(図25)こと、縁を持送で受けていること、正面扉の吊り元に円柱を使用していることなどである。これとうり二つの本殿が同町口山字中野宮の御崎神社本殿である。身舎の柱が8角形であることと、腰の持送や中備蟇股の彫刻の細工に違いは見られるが、規模や造りは同じであり、同じ大工の造営と推定する。
(6)八幡神社(表1−20) 鎮座地−穴吹字楠東21 [本殿]木造 三間社流造 銅板葺 身舎−円柱 切目長押 内法長押 頭貫木鼻(波、拳) 台輪留 隅(すみ)柱上部は出三斗 中(なか)柱上部は平三斗 二重虹梁上部は皿斗付出三斗 中備彫刻(波) 妻飾・二重虹梁大瓶束笈型付 二軒繁垂木 向拝−角柱 木鼻(獅子) 出三斗 繋海老虹梁 擬宝珠高欄三方切目縁 脇障子(板) 千木−垂直切 堅魚木−3本 (図27、29)
   この社は、現在穴吹川河口の平地に鎮座するが、社伝によると、「約400年前に現在地に移遷された」とある。また、町誌には「棟札が29枚保存されており、最古のものは延徳元年(1489)である」と記されている。 本殿は穴吹町唯一の旧郷社にふさわしく、三間社流造の社殿である。向拝部の側面は劣化保護のため板張りされており、正面部分を調査することができなかったが、虹梁や木鼻の彫刻から、幕末から明治初期の建立と推察する。身舎は円柱を切目長押と内法長押で固め、柱頭部には頭貫と台輪が載る。組物は隅柱上部が出三斗、中柱上部は平三斗で、手先の出ない納まりである。妻飾の二重虹梁を受ける組物は皿斗付の出三斗が使われている。特徴としては、身舎頭貫木鼻の手の込んだ波の籠(かご)彫り(図28)、内法長押上部の側面背面とも波をあしらった彫刻や、大虹梁と二重虹梁間にも波の彫刻を隙(すき)間なく施すなど、波の曲線をふんだんに取り入れて優美な本殿に仕上げている。
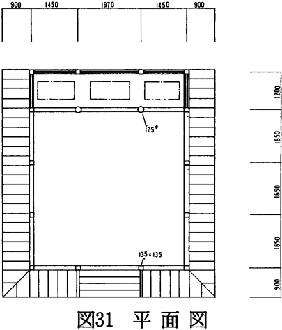
(7)観音堂(表2−J) 所在地−古宮字葛生 (図30、31) 方形造波板トタン葺、間口4.9m×奥行4.9m の三方吹きさらしの三間堂で、奥に1.2m
の仏間が張り出している。仏間正面の柱は円柱とし、柱頭部には大斗肘木が載り、正面性を出すために虹梁をいれるとともに、3方に切目縁を設けている。 出桁(でけた)により軒を深くとり、張り出した軒天の隅部分は扇状に板が張られているところが大きな特徴である。また、柱頭部には舟肘木がついている。 棟札の確認はできなかったが、和釘が使用されており、江戸後期から明治初期以降に建立されたものと推察される。
 
(8)薬師堂(表2−K) 所在地−口山字首野 (図32、33) 方形造銅板一文字葺。間口5.9m×奥行5.9m
の三方吹きさらしの三間堂で4方に切目縁を設けている。内法長押の隅部分の仕口が特徴的である。 棟札に「安永6年(1777年)再興、大工藤原甚右衛門」と記載があり、この年に建立されたものと推察される。他に元禄5年(1692年)の棟札があったが、これは前身のお堂のものであり、昭和の棟札も数枚あったが、屋根の葺き替えなどの修繕時のものである。 二つのお堂とも、剣山北側に多く分布する三方吹きさらし形式のお堂であり、原形は、茅葺き屋根であった。
 
(9)阿弥陀堂(表2−O)所在地−口山字渕名 (図34、36) 集落には氏神とともに、お堂が字ごとに建てられた。呼称は集落の名で呼ばれたり、本尊の名で呼ばれる場合が多い。縁日には、集落の人達が大勢集まって、祈祷(きとう)をしたり護摩(ごま)をたき、供物を祀って災いが降りかからないように祈った。普通の日には雑談などの集会の格好の場にも使用され、社交の場ともなる。またこの地は、剣山の修験道の入り口に位置し、お接待の場所ともなる。 渕名の山中に建つ阿弥陀堂は、開放的なお堂で、方形造茅葺の屋根を波鉄板で覆っている。桁行き梁間共に4.94m(三間)で、梁間は等間隔で柱を立て、桁行の柱間は端部が狭く、向拝を省略し、中央を広くとって正面性を出している。床は拭(ふ)き板張りで、天井は竿縁(さおぶち)天井。背面奥に、間口2.96m、奥行き1.17m
分を仏間として張り出す。柱頭部や柱間には、組物や彫刻は一切使用せず、奥の仏間の正面虹梁のみに彫りを施した、簡素なお堂である。このお堂は、祖谷地方の民家などの小屋組に使われているコキバシラ・オトシコミの工法をとっていることが、大きな特徴である。古い伝統的な建物は、軸部を貫と長押によって固められている。これに対してこの堂は、コキホゾと呼ばれる柱と、オトシコミと呼ばれる横架材によって軸部を構成する構造形式(図35)となっている。19世紀から祖谷地方などで見られ、各地に広がったと思われる。この工法は、軸部に耐力壁が少ない建物に威力を発揮し、構造を強固にするのに有効である。仏間からは4枚の棟札が見つかり、このお堂は天保7年(1836)の材料の一部を残し、明治19年(1886)に建てられたものと推定された。
  
4.おわりに 神社建築において、明治前の建物がこれほど多く現存し、内容的にも充実したものが多い地域はめずらしく、いままで見てきたうちでも特に今回の調査は充実したものであった。なお、社寺建築の建立年代については、棟札や古文書などで確認できたものもあるが、確認できないものについては、様式で判別した。 [参考文献] ・『穴吹町誌』穴吹町役場発行 昭和62年10月1日 ・『穴吹風土記』山上国夫発行 昭和35年5月30日 ・『穴吹村沿革』穴吹村役場発行 大正13年5月15日 ・『口山村郷土読本』口山村教育会 昭和7年3月31日 ・『古宮村誌』美馬郡古宮村役場発行 昭和29年11月15日 ・『徳島県の近世社寺建築(近世社寺建築緊急調査報告書)』奈良国立文化財研究所編・徳島県教育委員会発行 平成2年3月 ・『徳島県神社誌』徳島県神社庁発行 昭和56年1月1日 ・『角川日本地名大辞典・36徳島県』角川書店発行 昭和61年12月8日
1)小松島市小松島町 2)坂口建築設計室 3)富田建築設計室 4)真建築都市研究室 6)穴吹カレッジ 7)Y.M.設計室 8)A+U森兼設計室 9)龍野建築設計事務所 |