|
1.はじめに 明治22年(1889)に大字鯛浜・江尻・高房・中村・新喜来・太郎八須・北村の7ヵ村が合併して北島村になり、昭和15年(1940)、町制により北島町となる。県北東部に位置する同町は、吉野川河口三角州上の山をもたない平野であり、旧吉野川と今切川に挟まれた瓢箪(ひょうたん)形の地形をなしている。かつてこの地形のため、たびたび洪水に悩まされたが、土質は肥えており、蜂須賀藩政時代は盛んに藍(あい)を栽培していた。現在は花卉(かき)栽培が盛んである。 また今切川の豊富な水と、水陸の便に恵まれた同町は、各種工場が立地する工業地帯であるが、二つの市(徳島市・鳴門市)に隣接することで、ベッドタウンとしての顔も併せ持っている。 私たち郷土建築研究班は、町全域で13神社と8寺院を建築学的見地から実態調査し、建物の構造や建築様式等を一覧表にまとめた。なお今回の調査では、特徴ある建物が少なく、詳細調査は4ヵ所(神社2・堂宇1・薬医門(やくいもん)1)にとどまった。

2.北島町の社寺概要 神社建築の数多くのデータを得るため、ほぼ全社に近い13社を調査した。それをまとめたものが表1の一覧表である。 旧社格から見ると、郷社はなく、合併前の7ヵ村のそれぞれに村社があるほかはすべて無格社である。 本殿には大規模な造りのものはなく、江尻の八幡神社(表1のK)が桁行(けたゆき)三間、梁間(はりま)二間の入母屋造(いりもやづくり)である以外は、一間社流造(ながれづくり)が5社、他は祠(ほこら)であった。また、高房の八坂神社(表1のH)のような鞘堂(さやどう)まがい(様式外)の切妻造本瓦葺(きりづまづくりほんがわらぶき)のものも見られた。本殿の屋根材料は主として銅板葺(一部鉄板葺)であり、桧皮葺(ひわだぶき)や柿葺(こけらぶき)は見られなかった。 拝殿を有するのは12社で、うち7社が入母屋造(木造4社、鉄筋コンクリート造3社)、その他は切妻造(木造4社、鉄筋コンクリート造1社)であった。木造の拝殿のなかで縋破風(すがるはふ)の付いたものが4社、大唐破風(おおからはふ)も4社あった。屋根材料からみると、中村の大将軍神社(表1のG)が銅板葺である以外は、すべて本瓦葺であり、強風にさらされる海岸地域の特色をよく示している。 鳥居の様式では、神明(しんめい)神社(表1のA)でステンレス製の神明鳥居がみられる以外は、標準的な御影(みかげ)石の明神(みょうじん)鳥居であった。鯛浜の水神社(表1のM)の鳥居には篆書(てんしょ)で年号等が刻まれている。年代の分かる中では、江尻の八幡神社の明神鳥居が宝暦五年(1755)で最古である。 北島町では境内に地神碑が10ヵ所祭られている。狛犬(こまいぬ)・灯篭(とうろう)・手水(ちょうず)などのなかでは、新喜来の若宮神社(表1のI)の灯籠が安永二年(1773)であるが、中世にさかのぼるものは見当たらなかった。 寺院(庵(あん)も含む)では、中村の恵勝庵(表2の7)が臨済宗のほかは真言宗である。本堂は全て木造(入母屋造2寺、寄棟造2寺、宝形造3寺)であり、近年調査した海岸部の那賀川町、由岐町、松茂町と比較すると、神社共鉄筋コンクリート造の建物の割合が少ない。寺院建築では代表的な塔婆などの建物が見られず、付属建物として、堂宇が2ヵ寺、山門(薬医門(やくいもん))が1ヵ寺で見られた。光福寺(こうふくじ)(表2の1)の大日堂(だいにちどう)は元禄六年(1693)に建てられた木造宝形造(ほうぎょうづくり)本瓦葺の二間堂であり、町内では唯一17世紀の建物である。

3.北島町の社寺案内図

4.北島町の社寺建築一覧


5.北島町の各社寺 (1)八幡神社(表1−K) 鎮座地−北島江尻字宮ノ本32 [本殿]木造−桁行三間 梁間二間 入母屋造 向拝縋破風 銅板葺 身舎(もや)−円柱 地長押(ぢなげし) 切目(きれめ)長押 内法(うちのり)長押 頭貫木鼻(かしらぬききばな) 台輪 平三斗(ひらみつど) 中備彫刻蟇股(なかぞなえちょうこくかえるまた) 二軒繁垂木(ふたのきしげだるき) 妻飾(つまかざり)・虹梁(こうりょう) 大瓶束(たいへいづか) 向拝−角柱 虹梁型頭貫木鼻(竜) 出三斗(でみつど) 中備彫刻蟇股 繋海老(つなぎえび)虹梁 三方切目縁(さんぽうきれめえん) 擬宝珠高欄(ぎぼしこうらん) 脇(わき)障子(透彫(すかしぼり)) 木階(きざはし)(板階段) 千木(ちぎ)−置千木垂直切 堅魚木(かつおぎ)−3本 (図1、4、5、6) この社は町南部の江尻に位置する。拝殿は近年に鉄筋コンクリート造で新築されているが、本殿は木造入母屋造で縋破風の向拝を持つ建物である。万寿二年(1025)京都石清水八幡宮の別宮として勧請(かんじょう)され、北島村の総氏神として尊崇されている。 本殿は桁行三間・梁間二間で、150cm
高さの切石積(撫養(むや)石)の基壇上に建つ。桁行中央間を広くし、中備彫刻を置くなど中心を強調している。向拝の庇(ひさし)は桁行方向で身舎部分よりも60cm
ほど切り縮めている。三方の切目縁は束(つか)を立てずに雲型の彫刻を施した持送(もちおくり)と、一手先(ひとてさき)(出組(でぐみ))肘木(ひじき)で、縁葛(えんかずら)を受けている。総体的に見て、江戸時代末期(19世紀中期)の様相が感じられる。
  
(2)水神社(すいじんじゃ)(表1−M) 鎮座地−板野郡北島町鯛浜字西須4-3 [拝殿]木造 桁行三間 梁間二間 入母屋造 本瓦葺 内部−格絵馬(ごうえま)天井 向拝−間口一間 大唐破風 本瓦葺 角柱 虹梁型頭貫木鼻(竜) 大(だい)虹梁 出三斗(でみつど) 中備彫刻蟇股 大瓶束笈形付(たいへいづかおいがたつき) [本殿]木造 一間社流造 カラー鉄板葺 身舎−円柱 切目長押 内法長押 出三斗 頭貫木鼻(拳(こぶし)) 台輪 二軒繁垂木 妻飾・虹梁 大瓶束 向拝−角柱 虹梁型頭貫木鼻(拳) 出三斗 中備彫刻蟇股 繋海老虹梁 刎高欄(はねこうらん)三方切目縁 脇障子(透彫) 木階五級(木口(こぐち)階段) 昇擬宝珠(のぼりぎぼし)高欄 千木−置千木垂直切 堅魚木−3本 (図7、8、9、10、11、12、13)
 

この社は町の最南端の鯛浜字西須に位置し、農耕地の川と人のかかわりや、先人の水害への祈りが込められた社である。その南には昔の馬場に道路が通り、そばには今切川が流れ町境となる。この川のほとり、こんもりとした鎮守の森が平らな地形にアクセントを与えている。明治8年(1875)に村社に列せられ、祭神は水波能女命(みずはのめのみこと)、大綿積命(おおわたづみのみこと)、後の大正期に近在の天満・八坂・蛭子(えびす)・稲荷(いなり)神社が合祀(ごうし)されて、現在は6神(水波能女命・大綿積命−相殿・事代主神(ことしろぬしのみこと)・素戔嗚命(すさのうのみこと)・菅原道真公・稲荷大神)を祭る。 社の建立年代は不詳であるが、創建は古く『阿波志』に「水神祠、鯛浜村に在り」と記されている。なお、社叢(しゃそう)は昭和57年6月に町文化財指定を受けている。 鳥居は安政年間に建てられた御影石の明神鳥居で、篆書文字が刻まれている。向拝正面大唐破風には鳳凰(ほうおう)の懸魚(げぎょ)が飾られ、拝殿向拝の中備蟇股には波と因幡(いなば)の白兎(うさぎ)、木鼻(きばな)に竜など、祭神を意識した水にかかわる彫刻が施されている。拝殿の入母屋の妻には木連格子(きづれごうし)が施され、内部には屋号の格絵馬天井が見られる。 本殿はカラー鉄板葺の流造で屋根勾配(こうばい)はやや緩く、繋海老虹梁は向拝丸桁(がぎょう)に取り付く。破風には二重蕪(かぶら)の拝懸魚(おがみげぎょ)と雲型の降懸魚(くだりげぎょ)が付く。また、本殿・拝殿はともに御影石の玉垣に囲まれており、本殿の玉垣にはハート模様の透かしが見られる。
 
 
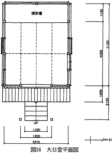
(3)光福寺(こうふくじ)(表2−1) 所在地−北島町北村字水神原32-1 山号−無量山 宗派−真言宗・高野山派 [大日堂(だいにちどう)]木造 桁行3.975m 梁間11.12m 宝形造(ほうぎょうづくり) 向拝縋破風 本瓦葺 主屋(しゅや)−角柱 切目長押 内法長押 大斗肘木(だいとひじき) 大瓶束笈形付 頭貫木鼻(拳) 一軒疎垂木(ひとのきまばらだるき) 正面切目縁 向拝−角柱 虹梁型頭貫木鼻(象)・錫杖彫(しゃくじょうぼり) 出三斗 中備蟇股 手挟 (図2、14、15、16) この寺院は町の中央北方、北村に位置する。本堂は改築中(平成7年7月調査時)であったが、本堂に向かって左側にある大日堂は老朽化の進行するなかで、往時の雄姿を辛うじてとどめていた。町史によると、『「元禄六癸酉年三月十一日大日堂建立」、「享和三星舎癸亥十月吉祥日云々」と記す棟札があり、この堂が元禄六年(1693)に建立され、享和三年(1803)に修繕された。』
としている。 規模は間口二間・奥行二間半であるが、正面奥にある奥行半間の須弥壇(しゅみだん)空間は後補のもので、建築当初は二間堂であったと考えられる。建築様式は縋破風の向拝を持つ宝形造で、60cm
高さの乱石積(撫養石)の基壇上に建つ。外壁は杉簓子下見板(ささらこしたみいた)張りとし、縁は正面にのみ付設されているが、側面の痕跡からみて当初は三方に縁が張られていたと考えられる。主屋側面の組物は雲型の大斗肘木であるが、正面中央のみ大瓶束笈形付に大斗肘木を載せ正面性を強調する。内部は畳敷きで、大斗肘木の上に棹縁(さおぶち)天井を張る。 なお、この堂の右側にある幹周8m
程の大いちょうは町の天然記念物に指定されている。
 

(4) 能満寺(のうまんじ)(表2−2) 所在地−北島町中村字寺裏23 山号−摩尼山 宗派−真言宗・高野山派 [山門]木造 二間一戸薬医門 切妻造 本瓦葺 親柱五平(ごひら)角柱 冠木(かぶき) 男梁(おうつばり) 女梁(めうつばり) 控柱(ひかえばしら)角柱 腰貫(こしぬき) 内法貫(うちのりぬき) 虹梁型飛貫(ひぬき) 一軒疎垂木 (図17、18、19、20) この寺院は町のほぼ中央、中村に位置する。寺の開基は不詳であるが、町史では「寺の過去帳によると、中興開基の勢助大和尚が永禄二年(1559)に没しているので蜂須賀氏入国当時には既に存在していたことがわかる。」としている。 山門は比較的規模の大きい薬医門で、正面に両開きの大戸(おおど)が、右側に潜戸(くぐりど)が付く。男梁は正面柱間の中央にも配し計4本を入れ、控柱には飛貫が付く。構造は一般的な薬医門形式であるが、門柱外側の桁の両側にも角柱が付く。これは後に補強のため付設されたものであろう。妻面は簡素な束立てのみで、男梁の上面には板張りの天井が張られている。
 
 
【参考文献】 『北島町史』北島町史編さん委員会編 北島町役場発行 昭和50年3月31日 『徳島県神社誌』徳島県神社庁教化委員会編 徳島県神社庁発行 昭和56年1月1日 『徳島県の近世社寺建築(近世社寺建築緊急調査報告書)』 徳島県教育委員会発行 平成2年3月
1)龍野建築設計事務所 2)Y.K.設計室 3)A+U森兼設計室 4)真建設都市研究室 5)富田建築設計室 6)那須建築工房 |