|
1.はじめに 今切川と旧吉野川に囲まれた吉野川河口三角州の一角に、北島町は位置する。当然山がなく、典型的な平野の農村地帯ではあるが、県下一面積の小さいこの町内に大きな工場が立地して工業地帯を形成しているほか、徳島市に近いこともあり住宅団地も数多く、ベッドタウンとしての顔も持っている。そのため人口密度は反対に県下一を示している。 集落としては旧街道沿いに民家や商店が町並みとして張り付くほか、ミニ開発の住宅地が点在しており、昔の形態はむしばまれて特徴を見るのは難しい。また、県道西条北島線沿いにスーパーマーケットなど車社会に対応した商業展開も進んでいる。人口は約2万人で増加しており、他の多くの町村のような深刻な過疎化とは無縁だが、新興住宅地の人口が昔から住んでいる町民を超えており、コミュニティーの変化という新たな問題も発生してきているようである。調査は主に萱葺(かやぶき)の民家を目当てに訪ねたが、徳島市近郊で都市化が進んでいるため、残されているものも少なくなっている。30棟の建物を確認したが、民家は28棟で、残り2棟はお寺と納屋であった。前年の那賀川町同様、そのなかでも家屋内の調査に協力いただける民家は少なく、聞き取りによる間取り図の作成を余儀なくされた例が多い。快く家屋内を見せていただいた方には本当に感謝している。11棟の民家を調査させていただいたが、家の間取りに大きな差はなく、四間取りを基本に、規模の大きな家は六間取りの形式を採っている。出入口の勝手についても、ほとんどが右勝手となっており、松茂町の調査と合わせて考えれば、この地域全体の特徴と考えられる。 調査は日本建築学会会員を中心に、上記執筆者のほか、姫野信明、工藤誠一郎、中川俊博、穴吹カレッジから後藤和典、白木博之、武田明、島田優子が参加し、調査や作図を行った。(林)
2.概要 1)調査の方法 1 町内全域を踏査し、伝統的形式を有する30棟の建物を確認した。うち28棟は民家で、残りの2棟はお寺と納屋に使われていた。 2 28棟の民家の玄関の勝手を調べる。 3 調査可能な11棟で、聞き取り、配置・平面・矩形図などを採取した。 4 既存調査データを加味して、北島町民家の特徴を分析する(表1)。

2)民家の概要 『阿波の民家』(1)の調査対象民家6棟の内5棟は消滅し、残されているのは1棟のみである。現在北島町に残されている民家は町の北半分に多く分布し、徳島市に近い南側には少ない(図1)。『阿波の民家』でも調査対象民家の内、南半分の民家は1戸だけである。これらから、市街化の進展にあわせて伝統的形式をもつ民家が建て変えられてしまったと推測される。 『阿波の民家』の調査対象や現存する民家において、建物形式はほぼ共通している。寄棟・合掌づくりの屋根は元々草葺きで、現在は鉄板で覆われ、下屋の四周に瓦庇(かわらひさし)をめぐらす。間取りは、六間の橋本邸を除きすべて四間取りで、平座敷形式である(図2、3)。また吉野川の氾濫(はんらん)の歴史を反映して、床高が高い民家が多い。玄関の勝手に関して、『吉野川流域の民家』(6)によれば「吉野川流域の西・北方では左勝手(図2)が多く、板野郡・徳島市より南方では右勝手(図3)が主流を占めている」という。これに従うように『阿波の民家』の6棟はすべて右勝手で、本調査でも右勝手が多かった。これらを総合すると、北島町ではある時期(おそらく江戸時代末か明治初期)に、民家の形式が完成したものと考えられる。室名では「オク」と「オモテ」がすべての民家に使われており(表2)、『阿波の民家』の「県下の民家全般に共通する名称である」ことを裏付けている。伝統的民家といってもほとんどの家で改造の手が加えられ、特にニワやドマ、カマヤと呼ばれるかつての土間が、板間の台所に変わっている事例が多い。また、ドマの上部にヒロシキとよばれ、女衆が猿梯子(さるばしご)で登り降りした小部屋が多くの民家でみられた。農作業の人手を家族以外に求めたということは、それなりに大きな農家が多かったということである。 (酒巻)

 

3.北島町の民家 〈左勝手〉 (1)近藤 利弘 家 新喜来字南古田39−4 近藤家はもと藍作農家であったが、藍の衰退により現在地に移転。主屋は昭和5年(1930)の築(図4)。以後は米作農家となる。戦前、養蚕を副業としていた。門は以前敷地の南西角にあり、よって左勝手となる(図5)。現在は東に門が作り直されている。井戸は主屋の北側にあった。土台については、この辺りでは砂岩・青石が多い中で、御影石である。 屋根はもと草葺き(寄棟、合掌)で、オブタは垂木に割竹をわたし、むしろ(小竹のす)を敷き、本瓦葺きとする(図7)。四間取りで、各部屋はフスマでつながる。戦後、主屋の北側に台所、風呂、便所を増設して、現在の形となる(図6)。以前は納屋がなかったために、主屋の南側(ザシキアガリはな側)のオブタ軒裏にブチョウ(雨戸板)を吊り、つっかえ棒で支え、雨天時の作業場・干し場とした。また、台風時はブチョウを下げて風雨をしのいだ。天井は元々小竹に土を張った大和(やまと)天井で、防火の役目もしていたが、現在は、その下に杉板の天井を張っている。カイコ棚を南側の座敷につくるため、天井の高さを高くとっている。南側座敷には、カイコ用の暖房のための半間四方の炉が、ザシキ・ミナミザとも床に切ってある。(塚田)

  
(2)中野 勝 家 中村字西ノ瀬52 中野家は、もともと米作農家であるが、藍師、養蚕も兼ねていた。 主屋は明治20年(1887)に建てられ、屋根は草葺き(寄棟、合掌)で、オブタは垂木・杉野地板に本瓦葺きである(図8)。四間取りで、コザ(食事のための板の間)を有する。トノグチ(玄関土間)にはエンがあり、トノグチとニワ(土間)とはスドで仕切る。ニワにヒロシキをもつ(図2)。内部は現在著しく改造されていて、原形をとどめていないとのこと。聞き取り調査により平面図を作成した。 門が敷地の西側にあったために、主屋は左勝手になった。この門は江戸中期のものといわれる(図9)。井戸は主屋の北にある。納屋では藍のスクモづくりが行われた。(塚田)
 
(3)新見庄太郎 家 鯛浜字川久保81−7 新見家は、もと藍作農家であったが、後に米作にかわった。明治42年(1909)に建てられ、今切川の土手際より現在の場所に移築された。 下屋の二方(南北)に日本瓦本葺きの瓦庇がめぐっており、東側には間口一間半の納屋を増築しているため、その部分はスレート瓦葺きの下屋となっている(図10)。典型的な四間取りであるが、今回調査したものの中では規模が小さく、コンパクトで機能的な間取りとなっている(図11)。現在、住まいとして使われていないが、内部に改装のあとが見られないため、当時の様子がしのばれる。すぐ西に隣家、南に持ち主の家があるため、当時の配置は分からない。(植村)
 
〈右勝手〉 (4)橋本 芳和 家 太郎八須字長岸開 橋本家は地主の家で、藍の栽培農家でもあった。屋号はカネジュウ。主屋は築後100余年で(図15)、蔵も同時期に建てられたが当家の建物の中では最も古い。東西の納屋などに藍農家の名残がみられ、チョウバやヒロシキ、バンヤなどにより、当時の暮らしがうかがえる。東の納屋には味噌(みそ)部屋もあったらしいが、昭和52年(1977)に東の、昭和58年(1983)に西の納屋を、それぞれ建て直した際になくなってしまった(図12、14)。 バンヤ(番屋)と呼ばれる長屋門(図16)にはかつて番頭がいた。主屋には表に面したチョウバと呼ばれる座敷があり、普段はウチニワから人の出入りが行われていたが、年貢を納める時期や、法事、結婚式のときなどにだけ、そのチョウバの前にある玄関が使われた(図13)。ウチニワにはヒロシキが残っており、お守さんの寝所として使われていた。ヒロシキの下はカラウス場になっており(図17)、毎朝カラウスをつくのが番頭の仕事であった。カマヤには煉瓦(れんが)積みのクドがあり、釜(かま)三つに加えて茶釜があったらしいが、現存していない。現在の松茂町に茅(かや)野を一反所有しており、毎年十一月になると茅を刈り取りに行き、刈った茅をヒロシキの横に吊り提げておき、何年かに一度、職人が茅を葺きに来たという。(吉原)
 
  

(5)藤田 庄八 家 新喜来字南古田27 旧吉野川土手の東に、藤田家はある。敷地へは、南側の道路から北へ、田の間をまっすぐ延びた道でアプローチする。南端にある二つの納屋が、門のような感じに間隔を構成して、敷地の領域感を現している(図18)。敷地内には大小9棟ほどの建物が点在している。主屋を中心に、南には今述べた納屋2棟、東には納屋と便所、北には風呂と離れ、南西に小さな鳥小屋が2棟ある。また、敷地の北東隅は鬼門切りされている(図19)。かつては藍作が行われ、その後養蚕を経て、現在は稲作を行う農家である。藤田家は分家であり、近所には一族の屋敷が並んでいる。 主屋(図20)の屋根裏から文化14年(1817)と明治18年(1885)の2枚の棟札が見つかったが(図21)、建築年は後者と考えられる。平面形式は四間取りを改造したもので(図22)、造り足したと思われる二帖の玄関が、ウチニワにしつらえてある。オモテ、オクが8帖で、ミナミザ6帖、キタザは8帖であるが、かつてはミナミザ同様6帖だったものを、玄関を造った時にカマヤを取り込み、広げたものと思われる。北に突き出た台所は70〜80年前に、エン(板間)は昭和初期に増築されたもの、そして西の便所と押入廊下等も、後の増築であろう。オモテの床は半床で、ミナミザには神棚が吊られている。四間の中央に造り付けの仏壇があったそうで、ウチニワにはヒロシキがある。(林)
 
  
(6)吉村 重信 家 中村字西ノ瀬 主屋と納屋を持つ、一般によく見られる農家の屋敷構えであり、北側の主屋と南側の納屋の間に、屋外での作業スペースとしての庭がある(図23)。主屋(図24)の建築年は、1920年代前半である。 平面形式は、四間取りを改造及び増築したもので、原形はオモテ、オク、ミナミザ、キタザの四部屋であり、現在のゲンカンとキタザの一部はドマであったらしく、カマヤとして使用されていた。現在のドマ及びカマヤ部分は、1935年頃に増築されており、オモテの南の内縁、西の部屋及びドマの東の部屋が、その後に増築されている(図26)。 納屋は本瓦葺き屋根の平屋建てで、1939年に建築されている(図25)。(速水)
 
 
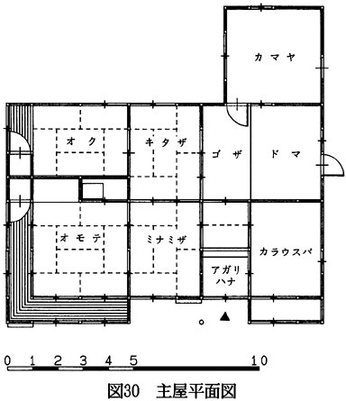
(7)矢野 晃 家 中村字古田 主屋のほかに蔵、ハナレ、納屋などがある、比較的大きな屋敷構えの農家である(図27、29)。 主屋(図28)は、現在までに3度移築されており、現在地には昭和19年(1944)に移築されている。平面形式はオモテ、オク、ミナミザ、キタザの四間取りであり、移築にともないアガリハナ、カラウスバ等の改造が行われたと思われ、オモテの間の内縁は、昭和19年の移築時に増築されている(図30)。また、カマヤには井戸があったことにより、以前は下屋だけの外部であったと思われる。主屋と蔵以外は新しく改築されており、納屋の2階は住宅として使用されている。(速水)
 
 
(8)濱田 肇 家 中村字東堤の内8 濱田家は、かつて比較的大規模に米や麦を栽培していた農家で、雇用人をかかえる地主でもあった。敷地内には、主屋のほかに納屋(図33)、蔵(図34)、便所があり、主屋の表に面した庭には、柿や椿、モミジ、つつじ、さつき、松とふんだんに樹木があしらわれ、主屋の裏側に小さな畑がある(図31、32)。外まわりの改修が12、3年前になされたそうで、外壁はささら子下見板張りで、上部には黒漆喰(しっくい)が塗られている(図35)。 主屋は築後80余年のものと伝えられているが、棟札は残っていない。土台は青石である。 トノグチといわれる玄関は右勝手で、入り口右側の戸の向こうには土間があり、カラウス場となっており、味噌樽(たる)なども置かれていた。土間の右手奥にはカマヤがあり、現在は改装されているが大釜が三つあった。このカマヤは増築されたものと思われる。 主屋内部の間取りは五間あるが、四間取りだったものをカマヤを増築したとき、古いカマヤに床を張って部屋にしたものとも考えられる。それぞれの部屋はオク、ミナミザ、キタザ、オモテ、ナカノマといい、ミナミザとキタザの二間は、ナカノマとツギノマとも呼ばれる。(吉原)
 
  
(9)濱田 芳子(重夫)家 中村字井利ノ口1 濱田家は、米、麦をつくり、比較的大きな農家であったと考えられる。敷地の西、北の二方を水路に囲まれ、水路を隔てた西側道路よりアプローチすると、南西に厩(うまや)と薪置きを兼ねた小屋、正面に納屋、北に主屋(右勝手)、その奥にハナレ、北西の角に蔵がある(図36)。 主屋(図38)は約100年前に建てられ、四代前に老門の恵比須神社前より現在の場所に移築された。また、大正末期にも柱や造作などの大がかりな改装を行っている。もとはミナミザ(図40)の位置が入口で、トノクチと呼ばれ、土間はニワから、カマヤに続いていた。ニワにはウスが置かれていた。オモテの南側にはエンが増築されている(図37)。改装前、ニワの上部にヒロシキがあり、その当時女中、お守さんが寝ていたそうである。 納屋は、切妻、日本瓦本葺きで西南の二方に下屋をめぐらす(図39)。明治37、8年(1904、5)日露戦争時に建てられた。バンヤと呼ばれ、内部に番頭の部屋があったそうである。鉄製のブチョウが残っており、外部での作業時に庇として使われていたが、現在ははずされている。(根岸)
 
  
(10)中西 刷 家 鯛浜字大西47 敷地をまわりの土地から石を積んで高く上げて、洪水に備えている(図42)。 主屋の窓はほとんどアルミサッシにかわり(図43、44)、座敷もオクとキタザの内装が変更されている。カマヤは土間のままで、30年前に一部に板間を設け、あわせてクドがとられたようである(図41)。(田村)

  
(11)檪田 耕作 家 中村字出須6番地 座敷内部は見せてもらえず、聞き取りにより平面を採取する(図3)。 外観を見る限り、建築後には西側の便所が増築されただけで、今回調査した中で改造が最も少ないものである。かといって維持管理を怠っているわけではなく、外部の漆喰壁や土壁などは、素朴な美しさを保っている(図46)。現在物置に使われているヒロシキも原形をとどめ(図47)、水車も残されていた(図48)。マエナヤ、ヒガシナヤと呼ばれる二つの納屋も、よく残されている。(田村)

  
4.『阿波の民家』調査対象の民家 『阿波の民家』で調査された6軒はいずれも農家である。建築年代は享和3年(1803)の中野家(図49)にはじまり、文政12年(1829)の近藤家(図50)、天保5年(1834)の市原家(図51)、弘化4年(1847)の夷谷家(図52)、安政2年(1855)の渡辺家(図53)、安政頃の井上家(図54)とほぼ50年の間に集中している。このため外観、間取ともみな同一形式に属している。すなわち屋根は草葺きで、四周に瓦庇をめぐらし、間取は四間取で、平座敷形式である。中野家は柱に取替材が多い。近藤家は現在六間取であるが、これは土間に2室をつけ加えたためで、もとは四間取であった。市原家は安政の大地震(1854)にあって倒れたという。一部に古材を転用してある。夷谷家は土間部分の内装替えをしているが、室部分は改造が少ない。渡辺家は夷谷家と同一の大工によるもので、曲がりの強い梁(はり)を多用している。井上家は土間部分を改造し、ここに居室をつくっている。このように北島町で調査された家はいずれも四間取で、すでに整った形式になっている。 本稿でのヒロシキは、ニワ上部の梁に吊ってつくってある、あたかも駕篭(かご)のような釣部屋である。現在ヒロシキは取り払われたり、またあっても物置として用いられているが、かつては女衆・女中の寝室として用いられた。規模は長さ2m、幅1.5m、高さ1.5m
ほどである。ヒロシキをもつ家は女衆・女中をおく上属の家に限られ、また地域的にも吉野川中流・下流の地域の家に多い。ヒロシキという名称がどういう由来をもつものかは明かでない。ヒロシキが、家事・農作業等にあたって女手を必要とし、彼女らの寝室を家族とは別に、主屋内の土間に設けることに始まり、また男衆の寝室は門長屋など主屋外にとって、これと区別したものであることがわかる。(この項文献1より引用。一部改変)
  
  
5.あとがき 北島町で民家調査をはじめるにあたって、一体どれだけの民家が調査できるのか、はたして1棟でも残っているのだろうかという気持ちを、調査員全員が少なからず持っていた。結団式のあと、総合庁舎7階から2、3棟の民家を発見してやっと愁眉(しゅうび)を開いて調査に出かけたのを思い出す。結果として28棟の民家を確認し、当初は28棟もあったという思いであったが、冷静になるとやはり28棟しかなかったという気持ちに落ち着く。『阿波の民家』緊急調査以降の20年間に、対象となった6棟のうち5棟が消滅しているのである。これまでどれだけの伝統的な民家が失われてきたか、そして今回の調査結果がどのような意味をもつのであろうか。 今回調査に参加した徳島市川内町に住む専門学校建築デザインコース1年生が、北島町の民家を見ていみじくも言った言葉、「なんや、こんな家なら川内になんぼでもある」。建築の勉強をはじめたばかりの学生だからこそ新鮮な感性でものをみて、あるいは初めての民家調査というので過大な期待があったのかもしれない。また調査する民家で、建替を勧める建設会社の営業ウーマンとはち合わせした。阪神大震災を例に出すまでもなく、耐用年数を過ぎた古い建物は倒壊の可能性はある。このような経緯で民家が建て替わるのだと知らされ、同じ建築に携わる人間として複雑な思いをした。 北島町の民家は、確かに数も少なく、文化財といえる程のものもない。ただ、主玄関と内玄関の二つの出入口がある橋本家や、伝統的様式をよく保って大切に民家を使っておられる檪田家などが残されている。28棟すべてが江戸時代に吉野川中流・下流域で確立された四間取の生き証人であり、数が少なくなっている分、希少価値が出てきている。また米作の盛んな川内ではみられないヒロシキは、藍作中心であった当地方の生活を明らかにするための重要な鍵となろう。 徳島に限らず日本全国で、文化的生活や利便性追求の名のもとに、古い民家や町並みがその良さを評価されないまま消滅している。新しくできあがったものがどれだけのもので、差し引きプラスになったのかマイナスになったのか。伝統的な民家や町並みには、華やかさや派手さはない。土地に根ざした落ち着きや、素朴な美しさがあるだけである。今回のような地道な調査の積み重ねから、少しでも伝統的な民家を大切にしようという気持ちがひろがるのを願うばかりである。(田村)
参考文献 1)『阿波の民家/徳島県民家緊急調査研究報告』 昭和51年徳島県教育委員会 2)『石井町の民家』郷土研究発表会紀要、昭和61年、阿波学会・徳島県立図書館 3)『板野町の民家』郷土研究発表会紀要、昭和63年、阿波学会・徳島県立図書館 4)『土成町の民家』郷土研究発表会紀要、平成2年、阿波学会・徳島県立図書館 5)『松茂町の民家』郷土研究発表会紀要、平成3年、阿波学会・徳島県立図書館 6)『吉野川流域の民家』阿波学会40周年記念誌、平成6年、阿波学会・徳島県立図書館
1)徳島県建築士会 2)剛建築事務所 3)林建築事務所 4)KEN設計室 5)穴吹カレッジ 6)徳島県立近代美術館 7)UN建築研究所 |