|
1.はじめに 紀伊水道にそそぐ那賀川の河口三角州に位置する那賀川町は、山がなく、最高標高でも8m
しかないという典型的な平野の農村地帯を形成している。 商店街は無く、町の構造としては中島を中心とした木材、建具関係といった軽工業の産業活動を除くと、ほぼ全域が農業を主体とした集落構成をしている。かつて、この町の迷路のような曲がりくねった道路には苦労させられたが、近年国道55号バイパスが開通しアクセスも分かりやすくなった。このバイパスにもいずれ商業施設が張り付いてくるものと思われる。周辺は小松島市、羽ノ浦町、阿南市といった商業活動の活発な町に囲まれており、田園風景ではありながら住民の意識はすでに都市化したものを持っている。また、出島ではリゾート開発が行われており、町の姿もここ数年で変貌(へんぼう)する事であろう。 調査は各集落ごとの民家を調べたかったのであるが、協力下さる家が少なく、思っただけの調査量とならなかった。快く調査をさせていただいた方々には心から感謝する。 町内には総体的に大きな家が多いとの印象を受けたが、特に中島の那賀川堤防沿いには木材建具関連業関係者の大きな屋敷が並んでいる。農家は一般農家の他に五人組や庄屋の家も調査した。また、漁村民家として江野島の網元の家も見せていただいた。そのほか条里制の敷かれた町と言われ、区画された街路にその面影を残す今津浦には加子屋敷があったと言われており、集落の構成が興味深い。 建築班調査員は日本建築学会員を中心に上記執筆者のほか、速水可次、塚田憲、姫野信明、工藤誠一郎、中川俊博、根岸徳美、鳴門教育大学から元木靖代、藤山美鈴が参加し、調査や作図を行った。(林)
2.那賀川町の民家案内図 1)那賀川町の民家 (1)米澤重寛家(農家) 大字赤池267 (2)佐々木哲也家(材木商の家) 中島662 (3)橋本久家(五人組農家) 大字西原314番地の2 (4)松岡静夫家(組頭庄屋の家) 上福井元畭69出島 (5)大森政嘉家(農家) 大字芳崎160 (6)島圭昭家(農家) 中島1669 (7)島田彰一家(網元の家) 江野島825 (8)加子屋敷 今津浦 2)那賀川町の民家案内図

3.那賀川町の民家 (1)米澤重寛家(農家) 大字赤池267 那賀川の左岸、赤池地区の県道中島・古庄線に沿った材木置き場の北側に、米澤家は立地している。現在の家屋は、明治初期、現在の戸主である重實氏の祖父が、北海道の開拓から帰徳した際に建てたものである。帰徳後は土地を提供して、近隣の者との共同経営により、この地域の主たる産業の一つである製材業を営んでいたが、のちには土地を譲渡してしまったのだという。その後、祖父である初代主人は娘に養子を迎えたため、家にまつわる話などは充分に伝承されておらず、資料となるようなものも残っていない。重實氏はこの家に62年間住まっているが、家屋にまつわる詳細は不明であるとのことである。 敷地内の建物の配置(図1−1)については、木造平屋の寄棟造の主屋(図1−3)、その西には倉、西南にはハナレがあり、ハナレは隠居家として使われていたという。主屋の南には元の長屋門が残っており、現在は倉庫となっているが(図1−4)、昭和21年の南海地震の影響によって、一見して分かるほどに傾いている。この長屋門の方角から吹いてくる南風が、製材所からの木屑(きくず)をたくさん飛ばしてくるため、この家に住まう人たちを時に悩ませている。 主屋は最初、オモテ、オク(8帖(じょう))、チャノマ(6帖)、ウチ(8帖)に広いドマがあったようだが、このドマに座板を張るなどして、若干玄関まわりの様子を変えている(図1−2)。主屋の東側に、後年増築を施しており、およそ30年前に、茅葺(かやぶ)きの屋根に現在のように鉄板を巻いたということである。(吉原)
 
 
(2)佐々木哲也
家(材木商の家) 中島662 佐々木家は那賀川の三角州、河口に近く高い堤防に沿った道路に面した、広い敷地に建つ邸宅である(図2−1)。以前は赤池で居住し、那賀川上流からの筏流(いかだながし)の材木等の商売や海運業等を広く手掛けていたが、70年ほど以前現住地に今の家を建て移り住み、以前住んでいた土地で製材業を併せ始め現在に至っている。 現在の建物は大正13年(1924)に新築した、主屋は木造二階建て本瓦(かわら)(上部)葺き、及び袖(そで)瓦(下家)葺き、入母屋造りである(図2−2)。以前の家で悩まされた度重なる洪水に備えるため、住居の基礎は切り石小叩き高さ1m
とし、使用木材はすべて栂(つが)の赤味材とした立派なもので、材木商ならではの贅沢(ぜいたく)なものである。 母屋は南面し、通路は門柱から来客用玄関、一般用玄関に接している。玄関から来客用座敷(向かって左)に入ると、書院造りの床の間、床脇を持った10帖の部屋である(図2−3)。部屋の南及び西には広縁をめぐらし、室内から庭園が眺められる雪見障子が入れられて(図2−4)、庭園の各種石灯籠(いしどうろう)や植え込みが眺められる立派な客間である(図2−5)。広縁は外部に真ん中を楕円に透明に抜いた時代を感じさせるデザインの型板硝子(がらす)の硝子障子が入れられ(図2−6)、離れ座敷や風呂(ふろ)、手洗所へと続いている。 玄関脇には「ミセ」の間があり、商取引の場所となっており、垂木は住宅では余り使わない扇垂木となっているし、隅木の木鼻は銅板包み、しかも家紋の剣先四ツ目が打ち出されている(図2−7)。また、二階入母屋部の破風には「鰭(ひれ)付き懸魚(げぎょ)」が、壁三角部には木蓮格子(もくれんごうし)、大屋根は照り屋根の堂々たる手法であり(図2−8)、部分的ではあるが、社寺建築の経験のある手慣れた大工棟梁(とうりょう)の意気が感じられる。 主屋の裏側に続いて、右側に「ナヤ」「ミソ」「ショウユ」「漬物」等の建物がある(図2−10)。左側には「クラ」があり、漆喰塗りの防火扉のついた入り口があり(写真2−9)、腰は「ナマコ壁」の漆喰塗りである。また、換気のための鉄格子付小窓を持っている(図2−11)。 表門に程近く右側には「トモベヤ」という建物があり、事務所兼待ち合わせ休憩の建物の様であるが、現在は二階を改造し居住をしている様である。(酒巻)

  
  
  

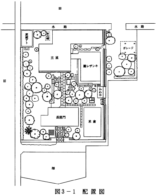
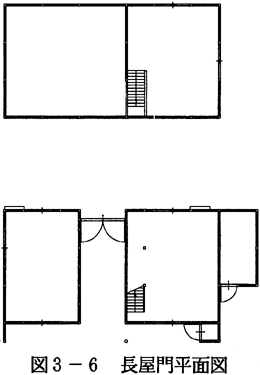
(3)橋本久家(五人組農家) 大字西原314番地の2 西原の県道から田んぼの中に見える大きな屋敷構えの橋本家は、石積みの塀に囲まれて数棟の建物が軒を並べている(図3−2)。 敷地は石積みの塀を西、南、東面の南部に巡らし北側は用水が流れ、川いっぱいまで石垣基礎の上に建物を建てているため城の堀のようである。塀を石垣にした理由は那賀川の氾濫(はんらん)に備えたもので、南側中央に開口を設け厨子(ずし)二階建ての長屋門を配している。この開口部には切り込みのある石を両側に設けて(図3−3)、洪水時にそこへ堰(せき)板を落とし込み、屋敷内への流入を防ぐようにしている。吉野川流域の藍(あい)師の大きな屋敷では石垣で敷地を高くした上に屋敷を構える事が多いのであるが、ここでは家に堤防を巡らしているかのようである(図3−4)。 配置は(図3−1)にみられるように敷地南面の長屋門をくぐり抜けた正面奥に文政12年(1829)建築の切妻日本瓦本葺きの主屋(図3−7)があり、主屋を中心に東に離れ座敷(図3−8)が建つ。北は主屋に接続して台所や風呂場を増築しているが、かつてここには味噌蔵が建っていた。西側に麦蔵があったが今は除却され基礎が残っている。また、長屋門の東には日本瓦本葺きの米蔵が建っている。 当主久氏によると橋本家は蜂須賀公入府時三河から荷駄役として随行してこの地に住んだが、かつては五人組組頭として最大時には田畑を和田島等に67町所有していたと伝えられているとのこと。屋敷は当初の場所から移転しており、墓は馬で引っ張ってこられる小さいものだそうである。正月に雑煮は食べず、握り飯と焼き味噌(みそ)を食するなど三河から移ってきた苦労を忍ばせる慣習を受け継いでいる。 主屋の屋根は明治5年に葦葺きから瓦に葺き替えられ、5年ほど前には瓦の葺き替えを伴う大改修と、北へ台所などの増築を行った。間取りは一般とは少し異なり、西に表座敷があり、七間取りに区切られている(図3−5)が、かつては変則の五間取りであった。 板戸の墨絵や欄間の彫刻は見事で普請時の財力とこだわりを感じさせる(図3−9)。東の離れ座敷は140〜50年前に日本画の画室として建てられたもので、本瓦葺き下屋付きの入母屋造で、10帖二間続きの座敷は共に床の間を設けている。これも贅を尽くし、後の何代かの当主が村会議員をしていたため来客も多く、会合に使われていたようである。西と南面に内縁を、西、南、東面に外縁を巡らしている。梁(はり)間三間、桁(けた)行六間の長屋門は(図3−10)切妻日本瓦本葺きの2階建てである。(林)

  
 
  
(4)松岡静夫家(組頭庄屋の家) 上福井元畭69出島 今回の調査で最も東側、那賀川の河口に程近い紀伊水道の波の音も聞こえてくる上福井の出島に松岡家はある。 敷地は四方に塀を巡らし(図4−1、4−2)、庭には松等の中高木を植えており、海からの風や台風への備えが見られる。塀は木造で塗壁、格子欄間に瓦葺きの本格的なもので(図4−5)、南側の薬医門(やくいもん)(図4−6、本柱が棟の芯(しん)よりやや表側に寄って立ち、背後に控え柱を備えた切妻造り平入りの門)と合いまって、どっしりとした中にも風情のある造りとなっている。 全体配置は門の正面に主屋があり、その北に離れ(インキョ家)、北西角には土蔵の蔵、そして南東側には、この地方の民家のほとんどがそうであるように納屋がある(図4−3)。 主屋は変形入母屋の2階建てで、西側が入母屋、東側が切妻になっている(図4−7)。天明?年の棟札により建築は215年程前のものと思われる。現在は東側土間を改修して台所として使っている。15年前に屋根瓦を葺き替えているが、主人がその時に出てきたスス竹でスダレを作っており、夏の風に涼やかな音を響かせている(図4−8)。このスス竹からも、建築時は茅葺き屋根だったものを後に瓦葺きに改造したものとも考えられる。 離れのインキョ家は入母屋造り2階建てである。主屋とは異なる造りで、家人によるとどこかから移築したものだそうである。透かし欄間や建具、自然木のままの階段手摺(すり)など、遊び心に富んだ造りが随所にみられる(図4−9)。主屋より家の建ちが高いのだが、年代は古いものと思われ、移築されたため主屋との高さのバランスが取れていない。主屋とは渡り廊下で巧みにつながれており、一体となって使われている。 蔵の南側には若宮さんが祀(まつ)られているが、以前は離れの東側の樫(かし)の木の南にあったそうである。 夏の庭に咲き誇る花木や、時おり吹き渡る風にカラカラと鳴る竹スダレの響きから、住む人のこの家に対する愛着と、この家に住み続けるのだというさわやかな意志のようなものを感じさせてくれる家である。(野口)
 

 
  

(5)大森政嘉家(農家) 大字芳崎160 大森邸は那賀川町のほぼ中央に位置し、敷地は水田に囲まれている(図5−3)。 アプローチ道路から主屋(右勝手)を正面にみた右側に納屋や倉庫を配置するという。南方(みなみがた)の平野農家の典型的な事例である(図5−1)。 主屋以外は新しい建物で、聞き取りによる主屋の建築年次は90年以前という。戦後にそっくり代がわりして入居したために古い資料は残されておらず、建築にまつわる伝承もない。寄棟造の主屋はもと草葺きの上屋で、現在は鉄板で覆われ、周囲は本瓦葺きの庇(ひさし)がめぐらされている(図5−4)。建設当初主屋は床上4室(オク、チャノマ、オモテ、ナカノマ)とニワ(土間)からなる4間取りであったと思われる。麦収穫後の作業が使われていたニワに部屋や物置が設けられ、また新建材を使った改造が多く行われて、建設当初の材は隠されている(図5−2)。大黒柱は225×190の杉。(田村)
 
 
(6)島圭昭家(農家) 中島1669 那賀川の南岸、阿南市側の飛び地にこんもりとして美しい屋敷林と生け垣に囲まれて島家はある(図6−3)。建物の配置(図6−2)であるが、南の道路から細くて長いアプローチ道路が周囲の田畑より石垣で積み上げた敷地南東隅に取り付き折れ曲がって少し中央寄りより敷地に入ると、中央にトタンで巻かれた葦葺き四方下屋根の主屋がある(図6−4)。主屋東側に大蓋(おぶた)の付いた切妻日本瓦本葺き屋根の納屋を配しており(図6−5)、かつては南側入り口に長屋門が在ったそうである。 主屋は140年ほど前建てられたもので梁間五間半、桁行七間半で、現在は8間程の部屋に区切られているが(図6−1)、改造する昭和8年頃以前は土間が広く、現在の玄関、6帖間や9帖の一部は土間であった。次の間の前に玄関を持ち、六間取りを変形した七間取りで、南から西側に矩折(かねお)りに巡らした縁側は以前は外縁であったが、当時としても大規模な屋敷であった。かつて屋外にあった井戸も現在は増築したカマヤに取り込まれているし、土間入り口脇には小便所があったそうである。屋根の葦葺きは昭和41年頃鉄板を巻いたとのこと。納屋は明治期に建て直したものである。島家の先祖は鹿島氏の文書の中にも名前が出てくる原忠衛門で、この名を代々襲名していたそうである。しかし今は奥様一人が住まわれるのみとなっている。(林)
 
  
(7)島田彰一家(網元の家) 江野島825 町の北部にあり、海岸堤防沿いに民家が細長くつながる漁村集落のなかに立地する。道路と反対の敷地の奥が堤防に接し、その先は紀伊水道がひろがる。 江野島の漁師として一番古いといわれる当家は、網元であった。敷地内の建物は、昭和7〜8年に建設された(聞き取り)主屋と、RC造の新屋、ちりめん加工が行われる工場、二つの漁具倉庫で構成される。 主屋は大屋根と庇とも本瓦葺きの2階建で(図7−3)、間取りや骨格の構造は当初のままであるが、外壁ひとみや内部仕上げなど改造された部分も多い。舟子が山から材料を運び、舟大工も手伝って建てたといわれる。かつて漁師は漁から帰ると、大漁であれば、ホラ貝を吹いて人を寄せ宴会をしたらしい。そのために広い座敷が必要で、当家でもオモテノマは10帖である。規模の大きい四間取りの間取りである(図7−1)。 主屋の東隣の漁具倉庫は、大屋根が本瓦葺き、庇は桟(さん)瓦葺き、建ちの低い厨子2階で、主屋と同時期の建物と思われる(図7−4)。右勝手の主屋の右側に納屋を置く。南方の配置パターン(図7−2)。 建設年度は新しいが、配置、間取りとも伝統的様式を踏襲してしたものといえる。 また当家には、かつて使用された定置網のアワ(木製のウキ)やイワ(オモリ)、タコツボなどの漁具が多く残されている(図7−5)。(田村)
 
  
(8)加子屋敷 今津浦 今津村史によれば、那賀川町のはぼ中央にある今津浦は、かつて加子屋敷(各浦々で加子が住んでいた住宅地)が存在し、現在加子住宅そのものは残されていないが、方形の道路形態や敷地割にその痕跡を止めている(図8−3、−4、−5)。 江戸時代阿波藩蜂須賀公の参勤交代は、御座船で徳島・福島を出発し、海路、沼島や紀ノ川口を経て大阪・安治川口に着き、それから陸路を江戸に向かった。海の行列は、千石積み造り総朱塗りの御座船を中心に大小30艘(そう)近い船団で、これらを操る乗り組みの加子も相当数が必要であった。加子は封建的身分制度に組み込まれ、上には「格付船頭」、「御目見(おめみえ)船頭」、「船頭」があり、その下の「御見杖突格(つえつきかく)」や「杖突格」に直接指導監督されていた。船頭や杖突格は苗字帯刀を許された士分で、大多数の加子は家屋敷が与えられた三人扶持であった。加子は、宍喰(ししくい)浦から阿部(あぶ)浦や今津浦、津田浦、沖須浦を経て堂の浦・土佐泊浦に至る53の浦々に住んでいた。2) 今日まで伝えられてきた加子屋敷として、藩政時代「沖須浦」と呼ばれた徳島市沖洲町がある。 阿波藩水軍の加子や船頭に関する人事や藩主・家臣の船の管理修復まで水上運輸の一切の行政を司る「安宅役所」は、寛永年間(1624〜43)に現在の徳島市安宅町に移された(安宅村軍港計画)。これに伴い沖洲の北屋敷・南屋敷(県道沖洲徳島本町線の南と北で、住居表示改正以前の呼称)には、船頭居宅15軒、加子居宅160軒、物言手代居宅2軒、合計177軒が建設された。3)
今津浦では安永4年(1775)4月に定められた加子役相極帳に、78人の加子役が記されている。1) 図8−1は文献
3)「加子御役所御構地之図天保(1830−43)ノ頃」より作成した沖洲加子屋敷分布図で、図8−2は今津浦道路現況図である。 道路構成や敷地配置に、沖洲と今津浦の類似点が認められる。街区の奥行が、沖洲50m、今津浦60m
で、ともに背割線が入り、短冊型に敷地が組み込まれている。道路幅員は、今津浦6m、沖洲4m
で、沖洲の方が狭く細長い。ただ加子屋敷の敷地の大きさに関して、文献
2)に「沖洲では、間口の倍が奥行の長さ」2)、今津浦については「(5間×15間=)75坪」1) の記述があるが、1/2500
地形図や現状と必ずしもそぐわない。沖洲では今も加子屋敷が残っているといわれ、実際にそれらしき古い建物が散見できる(図8−7、−8)。今津浦も伝統的な様式の建物が多く、かつての加子屋敷を彷彿(ほうぶつ)させる。 今津浦が加子屋敷であったのは間違いないが、当時の詳しい状況や現在とのつながり等は、今後の研究をまちたい。
 
  
なお参考として、加子住宅の概要を列記しておく。 ◎ 南北に伸びる道路から短冊型敷地へ東・西側から入るが、住宅の出入口は南に決まっており、前面には前庭が設けられる。南北方向の道路の両側に、長方形の住宅が直行して整然と並んでいた。 ◎ 住宅は、船頭や加子の封建的な身分とはあまり関係がない。間取りは土間の「ニワ」と、「玄関」や「オモテ」、「オク」、「居間」、「板の間」の5つのユカからなり、さらに「カマヤ」を主屋に添えて建てる。四間取りの変形といえる。(図8−6)(田村) ※文中の番号
1)〜4)は次頁の参考文献番号を示す。

 
4.総括 民家の入り口の位置について考えてみたい。那賀川町の民家は、今回調査した7家全てが右勝手の入り口であった。南面した家の南東に入り口があるのである。そして主屋の南東には納屋が置かれる事が多く、それは、調査した民家以外でも同様であった。那賀川町の民家は圧倒的に右勝手の家が多いのである。県西部の吉野川流域では左勝手の民家が多かったことを考えるとこの勝手の違いは、地域性と関係があるものと思われる。 仮説として考えられるのは、那賀川町は平野部で比較的土地がゆったりしていて、自由に平面計画ができ、家相で良いと言われる辰巳(たつみ)(南東)の方向に入口を取ったであろうこと。さらに入口前東側に納屋を配置することによって、紀伊水道と那賀川方向(南東)寄りの強風「まぜ」を防ごうとしたのであろ。一方吉野川流域では、冬の北西風を防ぐため蔵、納屋を西側に取り左勝手とし、太陽光を受けやすい南東側にオモテザシキを置いたのではないだろうか。ちなみに今回の調査で唯一那賀川の南岸にある南中島の島家では。敷地の北西側にうっそうとした屋敷林を持っていて、那賀川を吹き渡る冬の北西風に備えたものと思われる。入り口は他の家と同様右勝手で、納屋はやはり主屋の南東側にあった。同じ徳島県であってもその土地に応じて配置計画、間取りを変えている事が分かる。 今回の調査の中で心を打たれたのは、幾代も住み続けた家を大事に手入れをしながら、これからも住み継いでいこうとしている人たちにお会いできたことである。次々とプレハブ建築に建て替わっていく民家の多い中、この住まい手たちの家に対する愛着と決意に私たちはとても励まされたものであった。 その土地、土地の気候、風土、文化の中から生み出されてきた民家、先人の知恵の結晶でもある民家からのメッセージをいかに受け取り、何を受け継いでゆくのか、民家は私たちの想像力を大いに刺激しつつ、新たなテーマを私たちに呼びかけてくる。(野口)
参考文献 1)今津村役場 『今津村史』大正12年 2)藤目正雄 「阿波沖洲の加子住宅」『ふるさと阿波26号』昭和35年 3)沖洲地区文化おこし委員会 『わが町 沖洲』平成2年 4)徳島史学会 『とくしま歴史散歩』昭和47年
1)徳島県建築士会 2)林建築事務所 3)野口政司建築事務所 4)穴吹カレッジ 5)徳島県立近代美術館 |