|
はじめに
上那賀町は、那賀川の上流、通称丹生谷の中央にあり、南に海部山脈、北には剣山山脈の一分脈が東西に連なり、そのほぼ中央部を那賀川が西から東に蛇行しながら流れている。
また、東は相生町、西は木頭村、南は海南町、北は木沢村に接している。平地は那賀川及びその支流にわずかに点在する程度で、ほとんどが山地であり木頭林業地帯の中心地で、今も林業を基幹産業としている。
私達郷土建築班・建築班(合同建築班)は、日本建築学会徳島支所の学会員が中心となって、テーマを「上那賀町の民家と社寺建築」と決めて、7月29日から8月1日までの4日間現地調査を行った。班員9名の他に客員として、京都の建築家木下龍一氏とその友人であるフランス人のドミニクおよびマルレーヌ両女史が参加され調査に協力していただいた。今回の社寺建築は「農村舞台」の宝庫と言われている那賀川流域の上那賀町ということで、江戸時代より阿波の人形芝居の上演施設であるその「農村舞台」を中心に現地調査に踏み入った。
 目次
1.阿波の農村舞台の概要
2.上那賀町の神社と農村舞台
2−1 東尾の八幡神社と農村舞台
2−2 川俣の礫神社と農村舞台
2−3 日真の神明神社と農村舞台
2−4 拝宮の白人神社と農村舞台
2−5 轟の轟神社と農村舞台
2−6 菖蒲の五体神社
2−7 谷山の大木屋神社と農村舞台
2−8 深森の八幡神社と農村舞台
2−9 海川の八幡神社
2−10 その他の農村舞台(3件)
3.上那賀町のお堂
3−1 市宇のお堂
3−2 深森のお堂
3−3 川俣のお堂
3−4 轟のお堂
3−5 その他のお堂(5件)
4.あとがき 1.阿波の農村舞台の概要
農山漁村には人形芝居を演じる常設の施設である「農村舞台」が江戸時代よりあり、村々の神社の境内に建てられ、ここで催される人形芝居は単なる娯楽行事としてではなく、農作物などの豊饒を祈り収穫を感謝する氏神への奉納の行事でもあった。
昭和47年(1972)当時の研究では、その数は全国で1,330棟あり、未発見や廃絶した舞台を加えると2,000棟以上あると言われていた。その当時、徳島県にも208棟現存し、廃絶した舞台も36棟発見されている。徳島県は長野県、岐阜県と並んで全国3大舞台県であり他県の多くが歌舞伎舞台であるのに対して徳島県は人形芝居の舞台が主であり、全国的に見てもそれは大きな特色であると言えよう。また、農村舞台の分布は全国的傾向として主要街道や発展した町よりも裏街道に多くみられる。徳島県も同様で、吉野川流域の地方や徳島の中心地には少なく、中心地との文化交流の比較的不便な地方、裏の街道に多い。すなわち、勝浦川流域、桑野川流域、那賀川流域などに分布の密度が極めて高い。極度に不便な地にはほとんど建てられなかったようである。
徳島の中心と吉野川流域にはあまり建てられなかったが、芝居は盛んに行われていた。
人形座が村々を回り、仮設の小屋掛け舞台を造り上演していた。このような芝居は入場料を払って観るのである。これに対し常設の農村舞台は氏神への奉納行事として村民あげての催しであり、芝居の費用は村の経費や花などによってまかなわれ、村民は入場無料で観ることができた。
阿波の人形浄瑠璃の歴史はこの農村舞台のある村の民俗と結合している。農村舞台の調査研究により、解明されていく部分が多くあると思われる。

 2.上那賀町の神社と農村舞台
昭和47年当時、農村舞台は208棟発見されているが、那賀郡には88棟(42.3%)あり、そのうち上那賀町には30棟(14.4%)も現存していた。それから16年経過した今回の調査は期待と不安の気持ちでいっぱいであった。昭和59年の羽ノ浦町の調査の時は、歩けども歩けども1棟も発見できずに、苦い経験をしているだけに、今回もという想いがどうしてもつきまとった。4日間の短期間であったため町全体の調査を行えなかったのが悔やまれるが、12件の神社と農村舞台を調査することができた。そのうち廃絶が1件、取り壊されて集会所に建て替えられたのが1件、集会所に改修され舞台の面影が殆ど残っていないものが4件で、残りの6件については老朽化は進んでいるが昔の良さをしっかりと留めていた。その中でも川俣、拝宮、深森の3件は上演の為の設備(道具返し等)も残されており、少しの補修で即上演可能な状態であったのには、意を強くした。今回の調査は急速な時代の流れの中で、日常生活とは無縁になってしまいいつ消え去るかも分らない農村舞台をできる限り図面化し、記憶の中にしっかりと受け留めることであった。以下その12件について、図面と写真を交えながら説明する。

 2−1.東尾の八幡神社と農村舞台
国道195号線の長安口より菖蒲谷を登ること約4kmで東尾部落に登りつめる。車を降りて谷を渡り静かな杉の生い繁る薄暗い林道を歩いて行くと、前方がパッと明るくなり視界が急に広がり、その中にこの舞台と神社がひっそりとたたずむ姿を現わした。
この八幡神社は大正7年(1918)の部落の大火災に類焼し、昭和10年(1935)に再建されたものである。拝殿は間口2.5間、奥行2間、相の間をはさんで流れ造りの本殿は半間角の大きさである。また、農村舞台は神社と同様昭和10年頃に建て替えられたもので間口5間、奥行3間のごく標準的な大きさで、舞台に向かって右に太夫座が付いており、舞台の前面には前舞台に使える蔀帳が付いている。奥に増築したと思われる倉庫が付いている。
 

 
 

 2−2.川俣の礫神社と農村舞台
県道日和佐上那賀線沿いに20戸ばかりの小さな川俣部落があり、その山あいに礫神社と農村舞台がある。配置は広場から正面に拝殿と流れ造りの本殿、右に舞台、そしてその舞台の右手側の石段を降りるとお堂がある。神社、舞台、お堂と、川俣は3つの建物が揃っている価値の高い神社である。
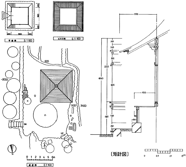
舞台の大きさは間口5間、奥行3間。向かって右に太夫座があり奥に屋根勾配をそのまま延長して奥行2間の厨房と倉庫を増築している。
5間×3間の標準的大きさの舞台であり道具返しも完備している。釣り床には襖絵が保存されており、太夫・道具方が整えば今すぐにでも上演できる状態にある。
 
 

 2−3.日真の神明神社と農村舞台
国道193号線の日真出合橋で193号線に分岐してすぐ、193号線に沿って右に日真の神明神社がある。石段を登ると左に広場がありその奥に舞台がある。大きさは間口4間、奥行2.5間で向かって右に太夫座が付いている。広場中央から石段を登りつめると拝殿と流れ造りの本殿がある。
 
  2−4.拝宮の白人神社と農村舞台
国道195号線の日真出合橋で193号線に分岐し約2km西進すると拝宮口に達する。それを右に折れて町道拝宮線を約2km登ると、拝宮谷川本流と白人谷の合流点にたどりつく。
そこに白人神社がある。広場から拝殿に向かって左に舞台がある。広場より石段を上り石橋を渡ると、正面に拝殿その奥に本殿、右にもう一つの本殿がある。谷のせせらぎが心地よく何とも景観のすばらしい処である。その谷のせせらぎの音も義太夫の声が聞き取りにくいということで、現在の位置に移したといわれている。この舞台は間口6間、奥行3.5間の一回り大きな立派な建物である。
 


 
 
  2−5.轟の轟神社と農村舞台
拝宮から町道拝宮谷線をもう少し登ると、轟部落にたどりつく。車を降り徒歩10分位に轟神社がある。鳥居の手前、右手に広場がありその奥に舞台がある。鳥居をくぐり石段を上りつめると、拝殿と本殿がある。舞台は間口4間、奥行3.5間と敷地の条件で間口が狭くなっている。また、太夫座、蔀帳を有し小規模な舞台である。この部落から少し入ったところに廃校の校舎を利用して、拝宮手漉和紙工場がある。
 
 
  2−6.菖蒲の伍体神社
国道195号線の長安口より菖蒲谷を上ること約2.5kmで菖蒲部落にたどりつく。道路より石段を上り広場にでると、右の舞台跡に公民館が建ち、正面に春日造りの本殿を持つ伍体神社がある。今回調査した中で春日造りはここだけで、他は全て流れ造りであった。春日造りは非常に少なく、奈良春日大社の本殿がこの様式の典型であり、住吉造りから出た様式で切妻屋根の片側の妻に向拝をつけた妻入りの形式である。その意味でも伍体神社の本殿は貴重である。

 
  2−7.谷山の大木屋神社と農村舞台
国道195号線の長安口より県道上那賀・日和佐線に入り日和佐町境にほど近いところに谷山部落がある。道路から2本の大杉に囲まれた石段を上ると、本殿のみがひっそりと建っている。舞台は改修されて、特徴的な蔀帳、太夫座はなく集会所になっている。
 

  2−8.深森の八幡神社と農村舞台
長安口から県道、上那賀日和佐線に入り4km程で深森部落につく。深森橋を渡り左に路をたどると、うっそうとした森の中に神社と間口5間、奥行4間の舞台がある。太夫座こそないが、蔀帳・道具返し等の設備が昔のままの姿で残されている。


 

  2−9.海川の八幡神社
平谷部落から分岐している193号線を成瀬川沿いに約6km上ると海川部落がある。石段を上り広場にでると、正面に拝殿・本殿を望む。その右奥には、新しく青年会館が建てられている。
2−10.その他の農村舞台
以上の9棟以外に調査確認した舞台は以下の3棟である。
(イ)平谷・八幡神社
廻り舞台があったということだが、床が固定されていた為確認できず。正面左側に増築の跡が見られる。現在は集会所として使用されている。
 (ロ)下用地・吉野神社
かなり改造の手が加えられ、現在集会所として使用されている。
小規模な舞台である。
 (ハ)谷口・天蒲神社
ここもかなり改修の跡が見られ、現在集会所として使用されている。
小規模な舞台である。
 3.上那賀町のお堂
徳島県のお堂は修験者たちの信仰の山である剣山を頂点としてその廻りの山間部に多く、これらのお堂はもともと正方形の平面をもち柱を建てて、祭壇壁以外は、外壁のない開放的なものであった。その後これらのお堂が老朽化して建て替えるようになった時、現在のような閉鎖的なものになった。今回は9棟のお堂を調査することができ、また上那賀町のお堂は、1〜2間角の中規模な大きさで外壁も全て張りめぐらされて後者のものが多いのが特徴であった。

3−1.市宇のお堂
 

3−2.深森のお堂

 
 

3−3.川俣のお堂
 
3−4.轟のお堂
 

3−5.その他のお堂
 
 
  4.あとがき
現在、徳島県の文化財指定を受け、今日なお上演されているのが、那賀郡木沢村坂州の農村舞台と徳島市八多町五滝にある犬飼の農村舞台の2件である。しかし、人形芝居を継承するものも、年々減少し現在活躍しているのは数座にすぎない。坂州、犬飼の舞台も上演者の減少等で年に1〜2回の上演がやっとの状態にあるが、座以外に戦後生れた婦人組織や、公立高等学校のクラブの活動に期待したい。
初めに説明したが、川俣、拝宮、深森の舞台は地元の人達の思いやりの中で、良い状態で保存されていた。その中でも川俣の舞台は何とか残していこうとする、地元の人達の気持ちが強くあらわれた模範的な増築で、時代の流れについていくための機能を付加している。廻りの景観にふさわしい外観を損うことなく、奥に厨房、倉庫等をじょうずに増築している。また川俣は神社と舞台のすぐ南にお堂も配置されており、非常に価値の高いものになっている。阿波の民衆の生活の中から生れた人形芝居、その素朴な民俗芸能を支えてきた農村舞台を今の子供達、次の子供達の目に残り、記憶に残るように永く大切に保存していければといま切に思う。
最後にこの調査、報告にあたり町役場・県立図書館・町民の皆様方には多大なご協力を賜り深く感謝致します。(文責、富田)
※参考文献 徳島県の農村舞台 河野 晃著
阿波の人形芝居 徳島県郷土文化会館 |